墨西哥帐篷
主材:优质碳钢钢管(氟碳漆防锈处理)
外膜:PVDF优质膜材+遮阳网
内膜:PVC
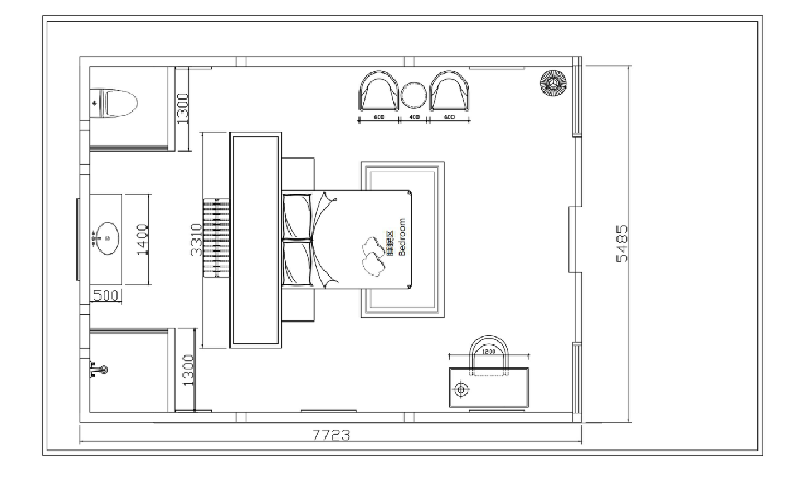
墙体:保温硬体墙+双层中空玻璃规格:5.6m*10m
套内面积:43㎡投影面积:107.36㎡
抗风等级:10级以下
产品咨询
产品介绍





上一篇:
平顶韩式帐篷(云麓帐篷)下一篇:
荒野帐篷产品咨询
主材:优质碳钢钢管(氟碳漆防锈处理)
外膜:PVDF优质膜材+遮阳网
内膜:PVC
墙体:保温硬体墙+双层中空玻璃规格:5.6m*10m
套内面积:43㎡投影面积:107.36㎡
抗风等级:10级以下





产品咨询